銷售①:13508662630 銷售②:13507271573
公司地址:襄陽市樊城區春園西路賈洼工業園 郵箱:xfycdq@163.com
選用250Wp多晶硅電池組件,相關參數如下:
| 序號 | 項目名稱 | 參數指標 |
| 1 | 峰值功率 | 260Wp |
| 2 | 峰值電壓 | 30.2V |
| 3 | 峰值電流 | 8.29A |
| 4 | 開路電壓 | 37.3V |
| 5 | 短路電流 | 8.84A |
| 6 | 溫度功率系數 | -0.40%/℃ |
| 7 | 開路電壓溫度系數 | -0.30%/℃ |
| 8 | 短路電流溫度系數 | 0.04%/℃ |
| 9 | 額定電池工作溫度 | 45±2℃ |
| 10 | 工作溫度 | -40~+85℃ |
| 11 | 最高系統電壓 | 1000V |
| 12 | 重量 | 19kg |
| 13 | 外形尺寸 | 1640mm×992mm×40mm |

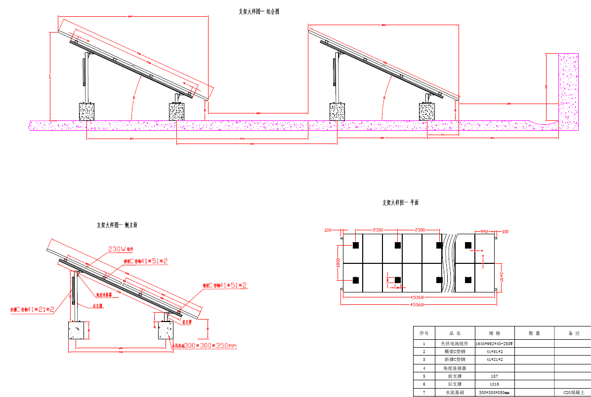
⑥光伏組件安裝圖紙








(不想等待可點擊按鈕通過QQ進行溝通,或直接電聯。)
關閉